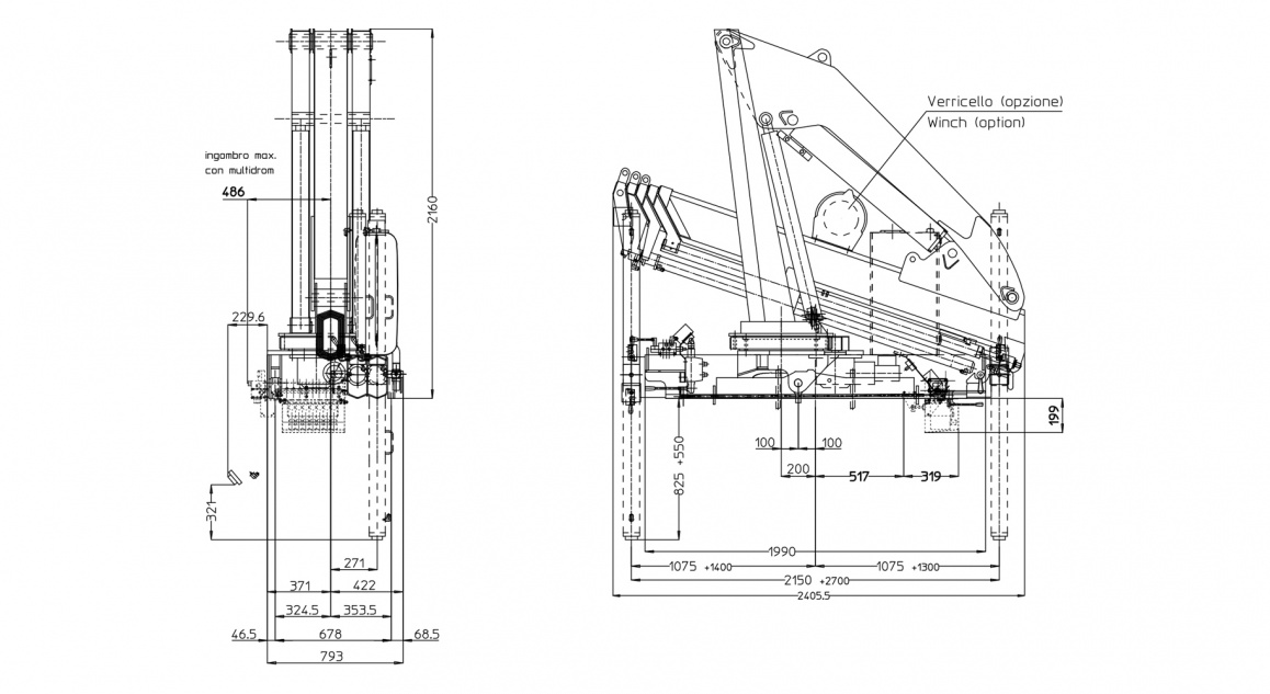
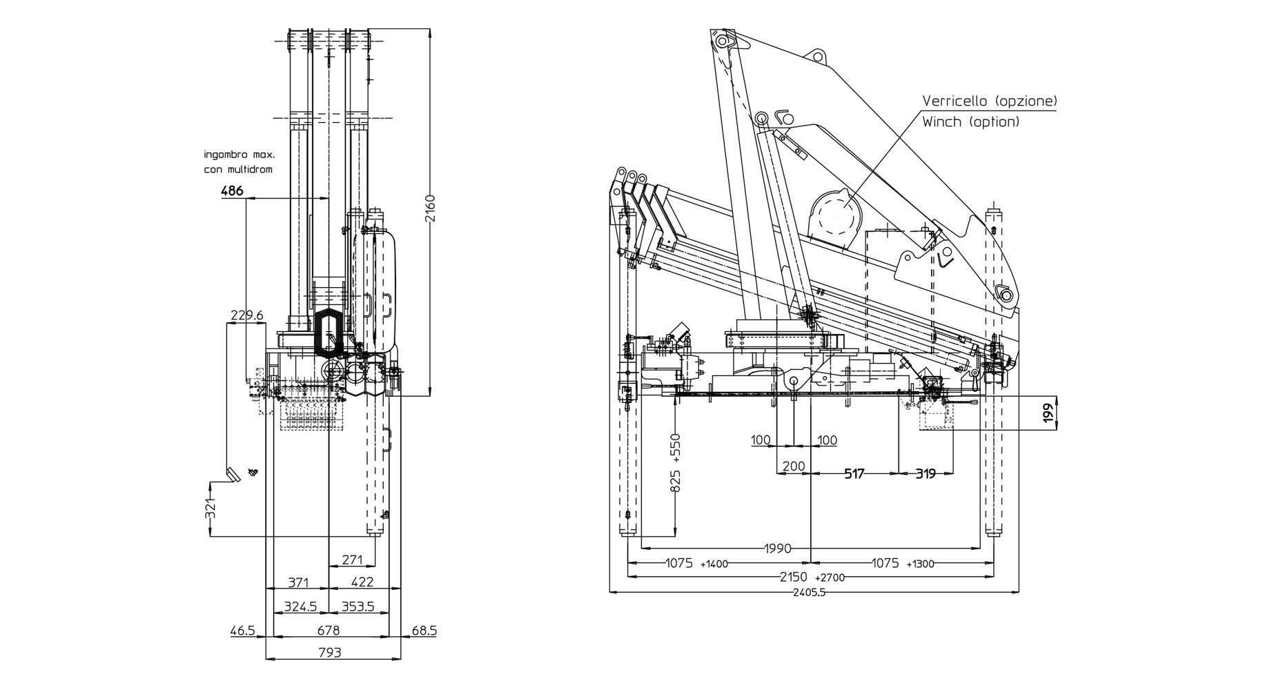
Кран E2 – Інформаційний лист:
| Технічні характеристики | Метрична система | Імперська система |
|---|---|---|
| Статичний момент на осі обертання | 12300 daN/m | 88983 lbs/ft |
| Гідравлічний виліт | 7690 mm | 25'3" |
| Довжина | 793 mm | 2'7" |
| Ширина | 2405 mm | 7'11" |
| Висота | 2160 mm | 7'1" |
| Маса (без оливи та комплектування) | 1635 kg | 3605 lbs |
| Вантажопідйомність | 4800 kg | 10120 lbs |
| Виліт із ручними подовжувачами | 15430 mm | 50'7" |
| Крутний момент повороту | 870 daN/m | 6294 lbs/ft |
| Винос стабілізаторів | 1400 + 1300 mm | 4'7" + 4'3" |
| Ширина стабілізаторів | 4850 mm | 15'11" |
| Продуктивність насоса | 25 l/min | 6,6 US gal/min |
| Тиск | 275 bar | 3910 psi |
| Об’єм бака | 57 l | 15 US gal |
Кран E2 – у стандартній комплектації:





Кран E2 – опціонально:















_x500.jpg)
_x500.jpg)


_1158x.jpg)
.jpg)
Завантажте_364x.jpg)
_364x.jpg)
_364x.jpg)