Кран T2 – Інформаційний лист:
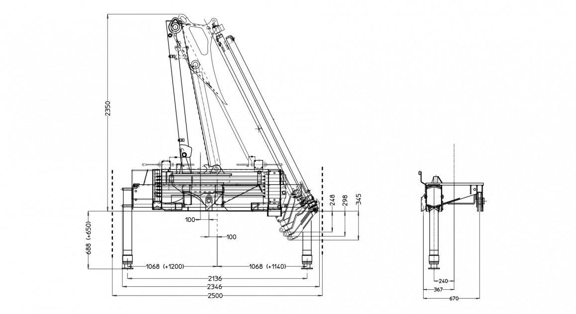
| Технічні характеристики | Метрична система | Імперська система |
|---|---|---|
| Статичний момент на осі обертання | 15700 daN/m | 113580 lbs/ft |
| Гідравлічний виліт | 6.38 m | 20'11" |
| Довжина | 901 mm | 2'11" |
| Ширина | 2346 mm | 7'8" |
| Висота | 2350 mm | 7'9" |
| Маса (без оливи та комплектування) | 1640 kg | 3620 lbs |
| Вантажопідйомність | – | – |
| Виліт із ручними подовжувачами | – | – |
| Крутний момент повороту | 1750 daN/m | 12660 lbs/ft |
| Винос стабілізаторів | 1200 + 1140 mm | 3'11" + 3'9" |
| Ширина стабілізаторів | 4476 mm | 14'8" |
| Продуктивність насоса | – | – |
| Тиск | 280 bar | 3680 psi |
| Об’єм бака | 120 l | 31 us gal |
Кран T2 – у стандартній комплектації:




Кран T2 – опціонально:















_x500.jpg)
_x500.jpg)


_1158x.jpg)