Кран E1 – Інформаційний лист:
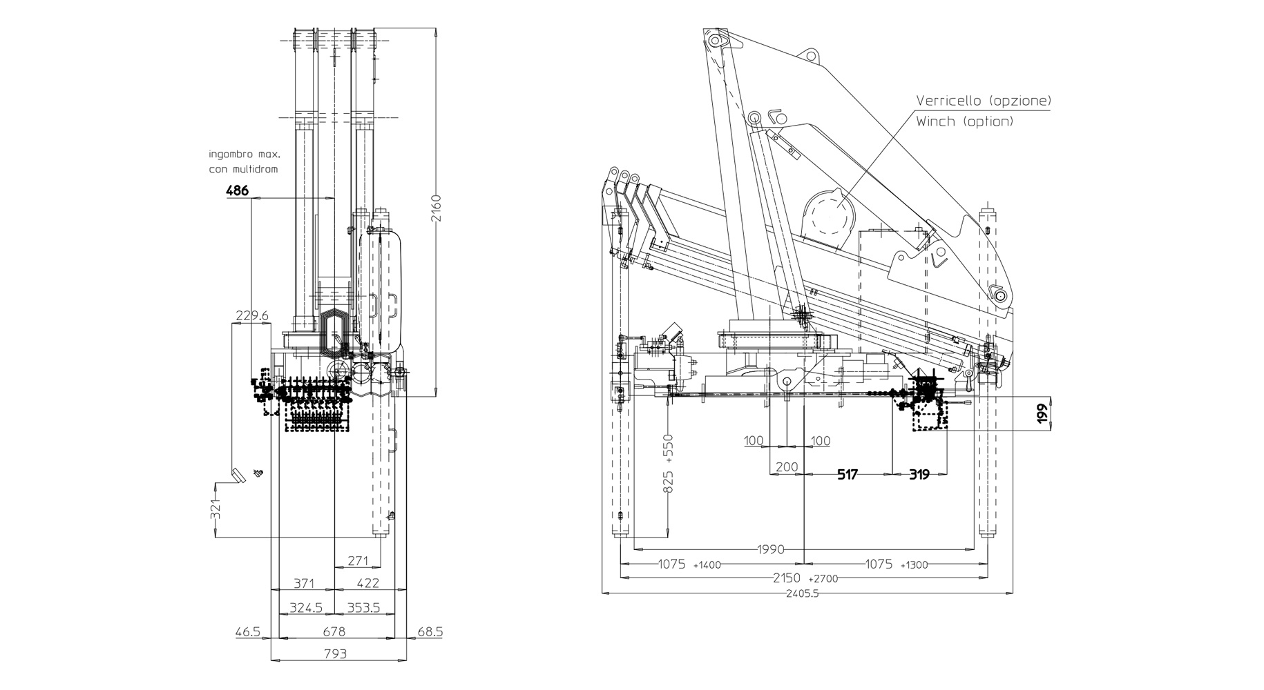
| Технічні характеристики | Метрична система | Імперська система |
|---|---|---|
| Статичний момент на осі обертання | 14000 daN/m | 101281 lbs/ft |
| Гідравлічний виліт | 5840 mm | 19'2" |
| Довжина | 793 mm | 2'7" |
| Ширина | 2405 mm | 7'11" |
| Висота | 2160 mm | 7'1" |
| Маса (без оливи та комплектування) | 1525 kg | 3362 lbs |
| Вантажопідйомність | 2960 kg | 6526 lbs |
| Виліт із ручними подовжувачами | – | – |
| Крутний момент повороту | 870 daN/m | 6293 lbs/ft |
| Винос стабілізаторів | 1400 + 1300 mm | 4'7" + 4'3" |
| Ширина стабілізаторів | 4850 mm | 15'11" |
| Продуктивність насоса | 25 l/min | 6 US gal/min |
| Тиск | 295 bar | 4149 psi |
| Об’єм бака | 57 l | 15 US gal |
Кран E1 – у стандартній комплектації:






Кран E1 – опціонально:













_x500.jpg)
_x500.jpg)
_x500.jpg)


_1158x.jpg)

Завантажте