Кран E1 – Інформаційний лист:
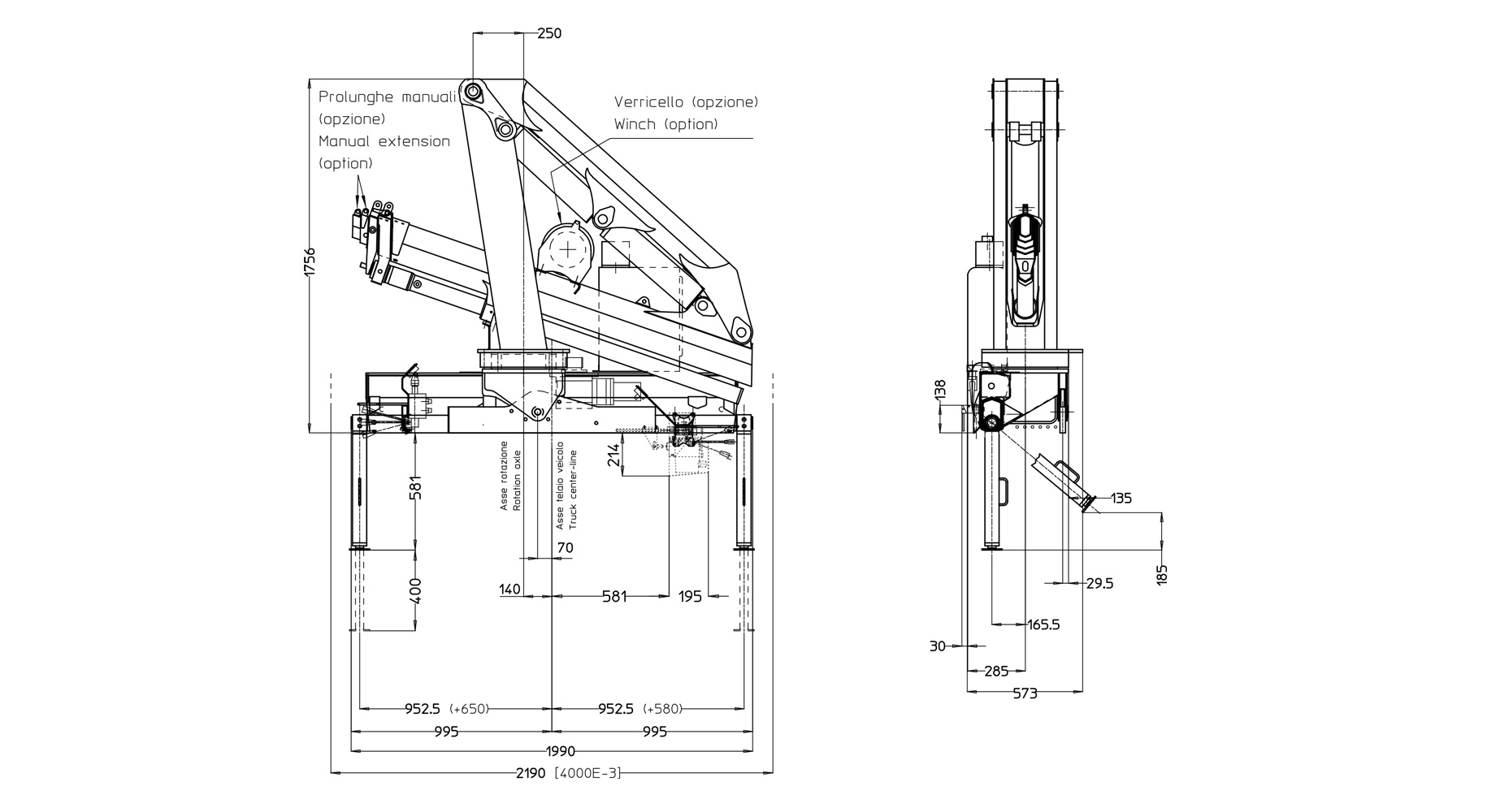
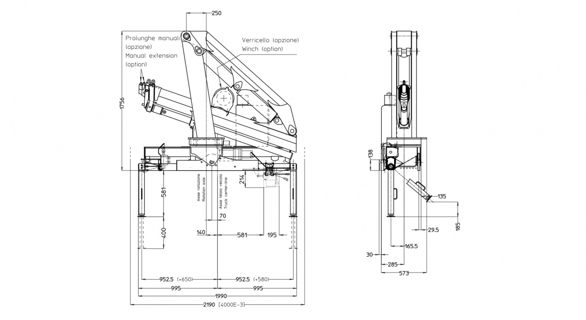
| Технічні характеристики | Метрична система | Імперська система |
|---|---|---|
| Статичний момент на осі обертання | 4700 daN/m | 32002 lbs/ft |
| Гідравлічний виліт | 4950 mm | 16'2" |
| Довжина | 573 + 30 mm | 1'11" + 1" |
| Ширина | 1990 mm | 6'6" |
| Висота | 1760 mm | 5'9" |
| Маса (без оливи та комплектування) | 690 kg | 1521 lbs |
| Вантажопідйомність | 1900 kg | 4190 lbs |
| Виліт із ручними подовжувачами | 10200 mm | 33'6" |
| Крутний момент повороту | 400 daN/m | 2894 lbs/ft |
| Винос стабілізаторів | 650 + 580 mm | 2'2" + 1'11" |
| Ширина стабілізаторів | 3135 mm | 10'3" |
| Продуктивність насоса | 14 l/min | 4 US gal/min |
| Тиск | 260 bar | 3697 psi |
| Об’єм бака | 31 l | 8,2 US gal |
Кран E1 – у стандартній комплектації:




Кран E1 – опціонально:















_x500.jpg)
_x500.jpg)


_1158x.jpg)
.jpg)
Завантажте_364x.jpg)

_x272.jpg)