Кран серії 75000 E HP – оберіть модель:
Кран E9F133 – Інформаційний лист:
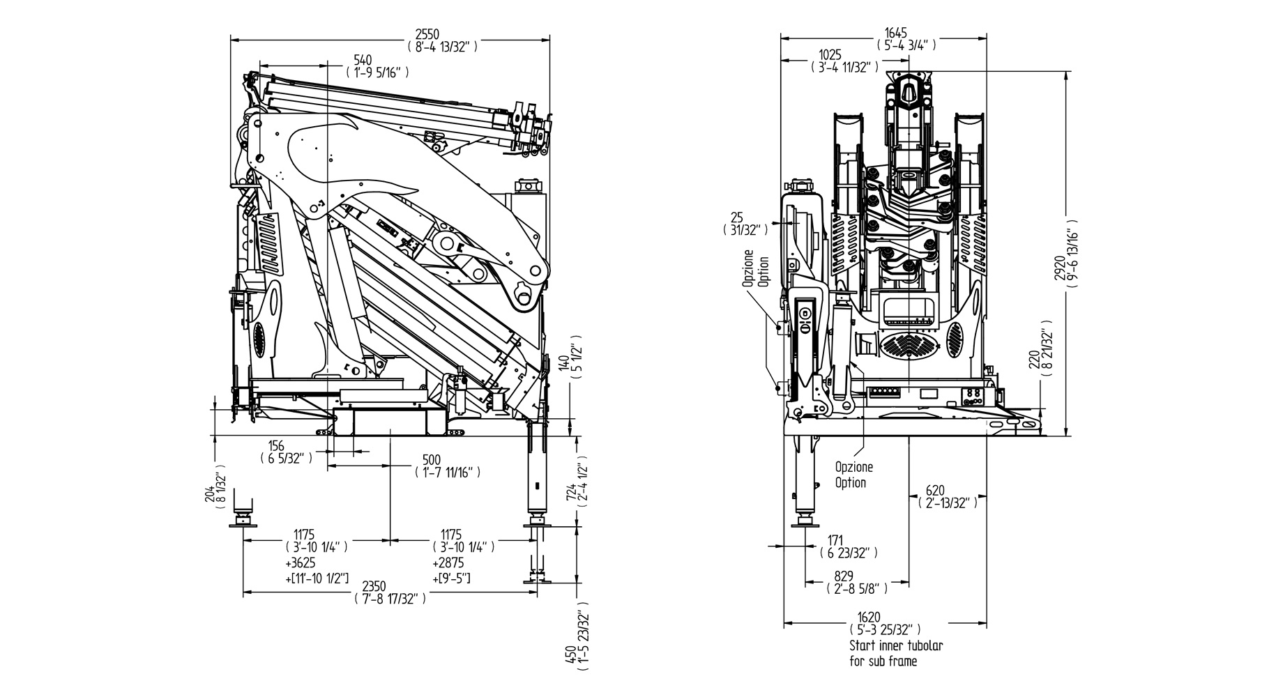
| Технічні характеристики | Метрична система | Імперська система |
|---|---|---|
| Статичний момент на осі обертання | 74750 daN/m | 540771 lbs/ft |
| Гідравлічний виліт | 28040 mm | 92' |
| Довжина | 1645 mm | 5'5" |
| Ширина | 2550 mm | 8'4" |
| Висота | 2920 mm | 9'7" |
| Маса (без оливи та комплектування) | 8652 kg | 19074 lbs |
| Вантажопідйомність | 5500 kg | 12125 lbs |
| Виліт із ручними подовжувачами | – | – |
| Крутний момент повороту | 7100 daN/m | 51364 lbs/ft |
| Винос стабілізаторів | 3625 + 2875 mm | 11'11" + 9'5" |
| Ширина стабілізаторів | 8850 mm | 29' |
| Продуктивність насоса | 100 l/min | 26 US gal/min |
| Тиск | 320 bar | 4550 psi |
| Об’єм бака | 235 l | 62 US gal |
Кран E9F133 – у стандартній комплектації:










Кран E9F133 – опціонально:








_x500.jpg)
_x500.jpg)


_1158x.jpg)

Завантажте_364x.jpg)
_364x.jpg)
_364x.jpg)
_364x.jpg)
_x272.jpg)
